WALKING DISTANCE TO SCHOOLS, SHOPS AND BUS SERVICE
SUMMARY Ipswich & Suffolk Estate Agents are delighted to be offering for sale this beautiful semi-detached bungalow located to the North-West of Ipswich on the sought after Dales development. This spacious bungalow offers entrance hall, lounge, kitchen, conservatory, 3 bedrooms and shower room. There is gas central heating and double glazing throughout, further benefits include walking distance to shops, bus service and schools. Outside there is off road parking, a detached garage, workshop and sun room at the bottom of the garden. Established front and South facing rear gardens, with a covered patio area. VIEWING HIGHLY RECOMMENDED.
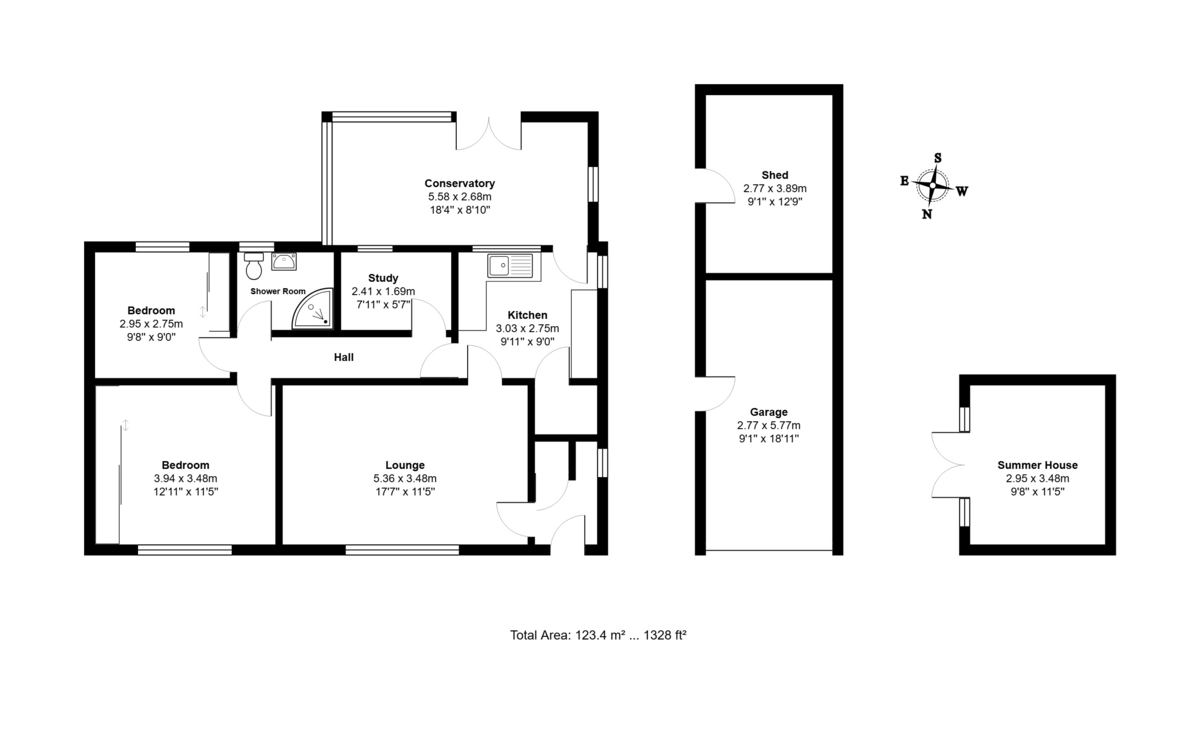
ENTRANCEHALL UPVC door into entrance hall, tiled flooring, radiator, shelved storage cupboard, part glazed door into lounge.
LOUNGE17' 7" x 11' 5" (5.36m x 3.48m) Fitted carpet, double glazed window to front aspect, radiator, part glazed door into kitchen.
KITCHEN9' 11" x 9' (3.02m x 2.74m) Modern fitted wall and base units with roll edge work tops, Smeg 4 ring electric hob with extractor over, electric oven, stainless steel sink & drainer with mixer tap, plumbing for washing machine, tiled flooring, integrated fridge/freezer, larder cupboard housing Baxi boiler, heated towel rail, double glazed window to side and rear aspect and double glazed door to rear aspect into conservatory.
CONSERVATORY18' 4" x 8' 10" (5.59m x 2.69m) Tiled flooring, 3 radiators, double glazed French doors to rear garden.
SIDEHALLWAY Carpeted flooring, radiator, loft hatch, doors to bedrooms and shower room.
BEDROOM112' 11" x 11' 5" (3.94m x 3.48m) Carpeted flooring, radiator, 4 door mirrored built in wardrobe, double glazed window to front aspect.
BEDROOM29' 8" x 9' (2.95m x 2.74m) Carpeted flooring, radiator, 2 door mirrored built in wardrobe, double glazed window to rear aspect.
BEDROOM37' 11" x 5' 7" (2.41m x 1.7m) Carpeted flooring, radiator, double glazed window to rear aspect looking into conservatory.
SHOWERROOM Comprising low level WC, wash hand basin with storage cupboards under, shower cubicle, extractor fan, tiled flooring, chrome heated towel, rail, double glazed window to rear aspect.
OUTSIDE Blocked paved off road parking to front, decorative slate area all enclosed by dwarf brick wall to front, double gates leading to detached garage with further parking on driveway, South facing rear garden, covered patio area for entertaining, lawn with flower borders, further walled patio area at bottom of garden, workshop, summer house, gardens all enclosed by fencing.
GARAGE18' 11" x 9' 1" (5.77m x 2.77m) Up & over roller door, power & lighting connected, side pedestrian door.
WORKSHOP12' 9" x 9' 1" (3.89m x 2.77m) Power & lighting connected.
SUMMERHOUSE11' 5" x 9' 8" (3.48m x 2.95m) Tiled flooring, double glazed windows to front and side aspect, power & lighting connected.
SERVICES We understand all mains services are connected.
COUNCIL Ipswich Borough Council
Council Tax Band (C) £2.194.00
NEARESTSCHOOLS Dale Hall Lane primary CP school, Westbourne Academy.
DIGITALMARKETS,COMPETITIONANDCONSUMERACT2024(DMCC) Your Ipswich Ltd has not tested any electrical items, appliances, plumbing or heating systems and therefore cannot testify that they are operational. These particulars are set out as a general outline only for the guidance of potential purchasers or tenants and do not constitute an offer or contract. Photographs are not necessarily comprehensive or current and all descriptions, dimensions, references to condition necessary permissions for use and occupation and other details are given in good faith and believed to be correct but should not be relied upon as statements of, or representations of, fact. Intending purchasers or tenants must satisfy themselves by inspection or otherwise as to the correctness of each of them. We have taken steps to comply with the Digital Markets, Competition and Consumer Act 2024 (DMCC), which require both the seller and their agent to disclose anything, within their knowledge, that would affect the buying decision of the average consumer. If there are any aspects of this property that you wish to clarify before arranging an appointment to view or considering an offer to purchase, please contact us and we will make every effort to be of assistance.
Your Ipswich Ltd, as part of their service to both vendor and purchaser, offer assistance to arrange mortgage and insurance policies, legal services, energy performance certificates, and the valuation and sale of any property relating to any purchaser connected to this transaction. Your Ipswich Ltd confirms they will not prefer one purchaser above another solely because he/she has agreed to accept the offer of any other service from Your Ipswich Ltd. Referral commission (where received) is in the range of £60 to £200.
AGENT´SSTAMPDUTYNOTE Please be advised that as of the 1st of April 2025, the government is changing the stamp duty and land tax structure on all residential purchases, which may affect the cost of stamp duty and land tax for your property purchase.
As of the 1st of April 2025, stamp duty and land tax will become due on all residential purchases of £125,000 or more. First time buyers will be required to pay stamp duty and land tax on all purchases of £300,000 or more.
If you are purchasing a second home, you will also be required to pay an additional 5% stamp duty and land tax.
BROADBAND&MOBILEPHONECOVERAGE Broadband- To check the broadband coverage available in the area go to
https://checker.ofcom.org.uk/en-gb/broadband-coverage
Mobile Phone- To check mobile phone coverage in the area go to
https://checker.ofcom.org.uk/en-gb/mobile-coverage
Location
Description
SEMI-DETACHED BUNGALOW
3 BEDROOMS
LOUNGE
MODERN FITTED KITCHEN
CONSERVATORY
SHOWER ROOM
DOUBLE GLAZED & GAS CENTRALLY HEATED
GARAGE & PARKING
WORKSHOP/SUN ROOM & COVERED PATIO AREA
WALKING DISTANCE TO SCHOOLS, SHOPS AND BUS SERVICE
SUMMARY Ipswich & Suffolk Estate Agents are delighted to be offering for sale this beautiful semi-detached bungalow located to the North-West of Ipswich on the sought after Dales development. This spacious bungalow offers entrance hall, lounge, kitchen, conservatory, 3 bedrooms and shower room. There is gas central heating and double glazing throughout, further benefits include walking distance to shops, bus service and schools. Outside there is off road parking, a detached garage, workshop and sun room at the bottom of the garden. Established front and South facing rear gardens, with a covered patio area. VIEWING HIGHLY RECOMMENDED.
ENTRANCEHALL UPVC door into entrance hall, tiled flooring, radiator, shelved storage cupboard, part glazed door into lounge.
LOUNGE17' 7" x 11' 5" (5.36m x 3.48m) Fitted carpet, double glazed window to front aspect, radiator, part glazed door into kitchen.
KITCHEN9' 11" x 9' (3.02m x 2.74m) Modern fitted wall and base units with roll edge work tops, Smeg 4 ring electric hob with extractor over, electric oven, stainless steel sink & drainer with mixer tap, plumbing for washing machine, tiled flooring, integrated fridge/freezer, larder cupboard housing Baxi boiler, heated towel rail, double glazed window to side and rear aspect and double glazed door to rear aspect into conservatory.
CONSERVATORY18' 4" x 8' 10" (5.59m x 2.69m) Tiled flooring, 3 radiators, double glazed French doors to rear garden.
SIDEHALLWAY Carpeted flooring, radiator, loft hatch, doors to bedrooms and shower room.
BEDROOM112' 11" x 11' 5" (3.94m x 3.48m) Carpeted flooring, radiator, 4 door mirrored built in wardrobe, double glazed window to front aspect.
BEDROOM29' 8" x 9' (2.95m x 2.74m) Carpeted flooring, radiator, 2 door mirrored built in wardrobe, double glazed window to rear aspect.
BEDROOM37' 11" x 5' 7" (2.41m x 1.7m) Carpeted flooring, radiator, double glazed window to rear aspect looking into conservatory.
SHOWERROOM Comprising low level WC, wash hand basin with storage cupboards under, shower cubicle, extractor fan, tiled flooring, chrome heated towel, rail, double glazed window to rear aspect.
OUTSIDE Blocked paved off road parking to front, decorative slate area all enclosed by dwarf brick wall to front, double gates leading to detached garage with further parking on driveway, South facing rear garden, covered patio area for entertaining, lawn with flower borders, further walled patio area at bottom of garden, workshop, summer house, gardens all enclosed by fencing.
GARAGE18' 11" x 9' 1" (5.77m x 2.77m) Up & over roller door, power & lighting connected, side pedestrian door.
WORKSHOP12' 9" x 9' 1" (3.89m x 2.77m) Power & lighting connected.
SUMMERHOUSE11' 5" x 9' 8" (3.48m x 2.95m) Tiled flooring, double glazed windows to front and side aspect, power & lighting connected.
SERVICES We understand all mains services are connected.
COUNCIL Ipswich Borough Council
Council Tax Band (C) £2.194.00
NEARESTSCHOOLS Dale Hall Lane primary CP school, Westbourne Academy.
DIGITALMARKETS,COMPETITIONANDCONSUMERACT2024(DMCC) Your Ipswich Ltd has not tested any electrical items, appliances, plumbing or heating systems and therefore cannot testify that they are operational. These particulars are set out as a general outline only for the guidance of potential purchasers or tenants and do not constitute an offer or contract. Photographs are not necessarily comprehensive or current and all descriptions, dimensions, references to condition necessary permissions for use and occupation and other details are given in good faith and believed to be correct but should not be relied upon as statements of, or representations of, fact. Intending purchasers or tenants must satisfy themselves by inspection or otherwise as to the correctness of each of them. We have taken steps to comply with the Digital Markets, Competition and Consumer Act 2024 (DMCC), which require both the seller and their agent to disclose anything, within their knowledge, that would affect the buying decision of the average consumer. If there are any aspects of this property that you wish to clarify before arranging an appointment to view or considering an offer to purchase, please contact us and we will make every effort to be of assistance.
Your Ipswich Ltd, as part of their service to both vendor and purchaser, offer assistance to arrange mortgage and insurance policies, legal services, energy performance certificates, and the valuation and sale of any property relating to any purchaser connected to this transaction. Your Ipswich Ltd confirms they will not prefer one purchaser above another solely because he/she has agreed to accept the offer of any other service from Your Ipswich Ltd. Referral commission (where received) is in the range of £60 to £200.
AGENT´SSTAMPDUTYNOTE Please be advised that as of the 1st of April 2025, the government is changing the stamp duty and land tax structure on all residential purchases, which may affect the cost of stamp duty and land tax for your property purchase.
As of the 1st of April 2025, stamp duty and land tax will become due on all residential purchases of £125,000 or more. First time buyers will be required to pay stamp duty and land tax on all purchases of £300,000 or more.
If you are purchasing a second home, you will also be required to pay an additional 5% stamp duty and land tax.
BROADBAND&MOBILEPHONECOVERAGE Broadband- To check the broadband coverage available in the area go to
https://checker.ofcom.org.uk/en-gb/broadband-coverage
Mobile Phone- To check mobile phone coverage in the area go to
https://checker.ofcom.org.uk/en-gb/mobile-coverage