INTRODUCTION CHAIN FREE - An excellent three bedroom detached family home, favourably located at the end of a cul-de-sac to the popular South Eastern fringe of Ipswich, convenient to Ipswich Hospital and the A14. The superbly presented accommodation, which is of comfortable proportions and has been improved to a stylish contemporary standard, briefly comprises; enclosed porch, entrance hall, striking fitted kitchen with breakfast bar and separate utility room off, fabulous sitting room with bespoke built-in media wall, cloakroom, and converted garage offering a versatile internal space on the ground floor, landing, three generous bedrooms, and a shower room on the first floor. To the outside there is a tarmac driveway providing off-road parking, whilst to the rear, there is an established larger garden with paved entertainment patio. Early viewing to fully appreciate is highly advised.
DOUBLEGLAZEDFRONTDOORTO
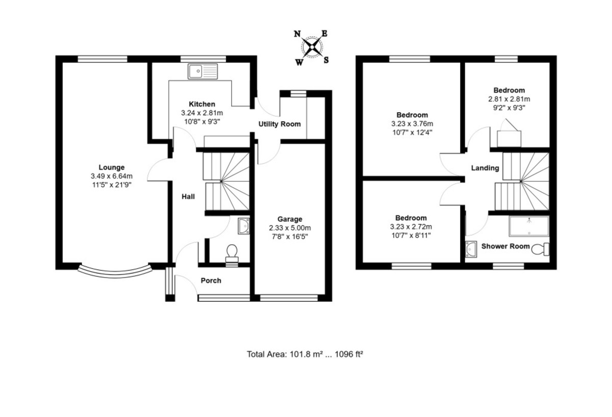
ENTRANCEPORCH Double glazed windows to front and side, wood effect flooring, double glazed door to entrance hall.
ENTRANCEHALL Radiator, under stairs cupboard, stairs rising to first floor, herringbone style wood effect flooring, doors to.
KITCHEN10' 8" x 9' 3" approx. (3.25m x 2.82m) Double glazed window to rear, radiator, Wren fitted kitchen, a comprehensive range of gloss fronted matching base and eye level fitted soft close cupboard and drawer units with integrated slide out racking, pull out spice rack and corner carousel systems, coprolite effect work surfaces and breakfast bar, one a quarter bowl composite sink drainer unit with mixer tap, built-in double oven and grill, inset electric induction hob, integrated fridge-freezer, tiled splash backs, polished porcelain tiled floor, inset ceiling lights, opening through to utility room.
UTILITYROOM Double glazed window to rear, eye level fitted cupboard concealing modern wall mounted gas fired boiler. coprolite effect work surface, under counter spaces for washing machine and tumble dryer, tiled splash backs, polished porcelain tiled floor, door to converted garage space.
CONVERTEDGARAGESPACE7' 8" x 16' 5" approx. (2.34m x 5m) A versatile space, ideal for use as a gym, work from home space or play room. Double glazed window to front, vertical radiator, loft access hatch, wood effect flooring.
** AGENTS NOTE - The garage has been professionally converted, however, we must advise all interested parties that building regulations weren't sought after or applied for. The seller will consider providing an adequate indemnity policy if required.
SITTINGROOM11' 5" narrowing to 9' 4" x 21' 9" (3.48m x 6.63m) Double glazed window to front and rear, two radiators, polished porcelain tiled floor, inset ceiling lights, bespoke built-in media wall with back-lit recess lighting.
CLOAKROOM Window to front, radiator, low level WC, wall mounted hand wash basin with mixer tap, polished porcelain tiled floor, inset ceiling lights.
STAIRSRISINGTOFIRSTFLOOR
LANDING Doors to.
BEDROOMONE10' 7" x 12' 4" approx. (3.23m x 3.76m) Double glazed window to rear, radiator, fitted wardrobes, bedside units and drawer unit, television point.
BEDROOMTWO10' 7" x 8' 11" approx. (3.23m x 2.72m) Double glazed window to front, radiator, fitted wardrobe, bedside units and drawer unit.
BEDROOMTHREE9' 2" x 9' 3" max. approx. (2.79m x 2.82m) Double glazed window to rear, radiator, built-in airing cupboard housing hot water tank, wood effect flooring, loft access.
SHOWERROOM Obscure double glazed window to front, radiator, glazed double shower cubicle with thermostatic shower, low level WC with concealed cistern, pedestal hand-wash basin with mixer tap, eye level fitted cupboard unit, part tiled walls, vinyl flooring.
OUTSIDE The elevated retained frontage provides a tarmac driveway providing off-road parking with hedging and shrubs to the lower front boundary, whilst to the rear, there is an established larger garden with paved entertainment patio and pathway enjoying a pleasant outlook. The wooden summerhouse, shed, and greenhouse will remain, there is an external tap.
IPSWICHBOROUGHCOUNCIL Tax band D - Approximately £2,358.54 PA (2025-2026).
NEARESTSCHOOLS(.GOVONLINE) Morland C of E primary and Ipswich Academy secondary.
DIRECTIONS Leaving Ipswich town centre, head south east along the A1156, continue up Bishops Hill, turn right onto Nacton Rd, go through 1 roundabout, turn right onto Maryon Rd, continue onto Brazier's Wood Rd, turn left to stay on Brazier's Wood Rd, turn left to stay on Brazier's Wood Rd, turn right onto Platters Cl, the destination will be on the right.
BROADBAND&MOBILEPHONECOVERAGE Broadband- To check the broadband coverage available in the area go to
https://checker.ofcom.org.uk/en-gb/broadband-coverage
Mobile Phone- To check mobile phone coverage in the area go to
https://checker.ofcom.org.uk/en-gb/mobile-coverage
STAMPDUTYLANDTAX(SDLT) On all property and land transactions, the buyer needs to be aware that there is potentially a stamp duty land tax amount to pay on their completed purchase.
The link below will take you to the government online calculator to assist you with working out the cost for this tax and if it is applicable to you.
DIGITALMARKETS,COMPETITIONANDCONSUMERACT2024(DMCC) Your Ipswich Ltd has not tested any electrical items, appliances, plumbing or heating systems and therefore cannot testify that they are operational. These particulars are set out as a general outline only for the guidance of potential purchasers or tenants and do not constitute an offer or contract. Photographs are not necessarily comprehensive or current and all descriptions, dimensions, references to condition necessary permissions for use and occupation and other details are given in good faith and believed to be correct but should not be relied upon as statements of, or representations of, fact. Intending purchasers or tenants must satisfy themselves by inspection or otherwise as to the correctness of each of them. We have taken steps to comply with the Digital Markets, Competition and Consumer Act 2024 (DMCC), which require both the seller and their agent to disclose anything, within their knowledge, that would affect the buying decision of the average consumer. If there are any aspects of this property that you wish to clarify before arranging an appointment to view or considering an offer to purchase, please contact us and we will make every effort to be of assistance.
Your Ipswich Ltd, as part of their service to both vendor and purchaser, offer assistance to arrange mortgage and insurance policies, legal services, energy performance certificates, and the valuation and sale of any property relating to any purchaser connected to this transaction. Your Ipswich Ltd confirms they will not prefer one purchaser above another solely because he/she has agreed to accept the offer of any other service from Your Ipswich Ltd. Referral commission (where received) is in the range of £60 to £200.
Location
Description
CHAIN FREE - CUL DE SAC
SPACIOUS 3 BED DETACHED HOUSE
VERY WELL PRESENTED
MODERNISED FITTED KITCHEN
COMFORTABLE CONTEMPORARY SITTING ROOM
SEPARATE UTILITY ROOM
GARAGE CONVERSION
GROUND FLOOR CLOAKROOM
SRIVEWAY PARKING & GARAGE
LARGER ESTABLISHED REAR GARDEN
INTRODUCTION CHAIN FREE - An excellent three bedroom detached family home, favourably located at the end of a cul-de-sac to the popular South Eastern fringe of Ipswich, convenient to Ipswich Hospital and the A14. The superbly presented accommodation, which is of comfortable proportions and has been improved to a stylish contemporary standard, briefly comprises; enclosed porch, entrance hall, striking fitted kitchen with breakfast bar and separate utility room off, fabulous sitting room with bespoke built-in media wall, cloakroom, and converted garage offering a versatile internal space on the ground floor, landing, three generous bedrooms, and a shower room on the first floor. To the outside there is a tarmac driveway providing off-road parking, whilst to the rear, there is an established larger garden with paved entertainment patio. Early viewing to fully appreciate is highly advised.
DOUBLEGLAZEDFRONTDOORTO
ENTRANCEPORCH Double glazed windows to front and side, wood effect flooring, double glazed door to entrance hall.
ENTRANCEHALL Radiator, under stairs cupboard, stairs rising to first floor, herringbone style wood effect flooring, doors to.
KITCHEN10' 8" x 9' 3" approx. (3.25m x 2.82m) Double glazed window to rear, radiator, Wren fitted kitchen, a comprehensive range of gloss fronted matching base and eye level fitted soft close cupboard and drawer units with integrated slide out racking, pull out spice rack and corner carousel systems, coprolite effect work surfaces and breakfast bar, one a quarter bowl composite sink drainer unit with mixer tap, built-in double oven and grill, inset electric induction hob, integrated fridge-freezer, tiled splash backs, polished porcelain tiled floor, inset ceiling lights, opening through to utility room.
UTILITYROOM Double glazed window to rear, eye level fitted cupboard concealing modern wall mounted gas fired boiler. coprolite effect work surface, under counter spaces for washing machine and tumble dryer, tiled splash backs, polished porcelain tiled floor, door to converted garage space.
CONVERTEDGARAGESPACE7' 8" x 16' 5" approx. (2.34m x 5m) A versatile space, ideal for use as a gym, work from home space or play room. Double glazed window to front, vertical radiator, loft access hatch, wood effect flooring.
** AGENTS NOTE - The garage has been professionally converted, however, we must advise all interested parties that building regulations weren't sought after or applied for. The seller will consider providing an adequate indemnity policy if required.
SITTINGROOM11' 5" narrowing to 9' 4" x 21' 9" (3.48m x 6.63m) Double glazed window to front and rear, two radiators, polished porcelain tiled floor, inset ceiling lights, bespoke built-in media wall with back-lit recess lighting.
CLOAKROOM Window to front, radiator, low level WC, wall mounted hand wash basin with mixer tap, polished porcelain tiled floor, inset ceiling lights.
STAIRSRISINGTOFIRSTFLOOR
LANDING Doors to.
BEDROOMONE10' 7" x 12' 4" approx. (3.23m x 3.76m) Double glazed window to rear, radiator, fitted wardrobes, bedside units and drawer unit, television point.
BEDROOMTWO10' 7" x 8' 11" approx. (3.23m x 2.72m) Double glazed window to front, radiator, fitted wardrobe, bedside units and drawer unit.
BEDROOMTHREE9' 2" x 9' 3" max. approx. (2.79m x 2.82m) Double glazed window to rear, radiator, built-in airing cupboard housing hot water tank, wood effect flooring, loft access.
SHOWERROOM Obscure double glazed window to front, radiator, glazed double shower cubicle with thermostatic shower, low level WC with concealed cistern, pedestal hand-wash basin with mixer tap, eye level fitted cupboard unit, part tiled walls, vinyl flooring.
OUTSIDE The elevated retained frontage provides a tarmac driveway providing off-road parking with hedging and shrubs to the lower front boundary, whilst to the rear, there is an established larger garden with paved entertainment patio and pathway enjoying a pleasant outlook. The wooden summerhouse, shed, and greenhouse will remain, there is an external tap.
IPSWICHBOROUGHCOUNCIL Tax band D - Approximately £2,358.54 PA (2025-2026).
NEARESTSCHOOLS(.GOVONLINE) Morland C of E primary and Ipswich Academy secondary.
DIRECTIONS Leaving Ipswich town centre, head south east along the A1156, continue up Bishops Hill, turn right onto Nacton Rd, go through 1 roundabout, turn right onto Maryon Rd, continue onto Brazier's Wood Rd, turn left to stay on Brazier's Wood Rd, turn left to stay on Brazier's Wood Rd, turn right onto Platters Cl, the destination will be on the right.
BROADBAND&MOBILEPHONECOVERAGE Broadband- To check the broadband coverage available in the area go to
https://checker.ofcom.org.uk/en-gb/broadband-coverage
Mobile Phone- To check mobile phone coverage in the area go to
https://checker.ofcom.org.uk/en-gb/mobile-coverage
STAMPDUTYLANDTAX(SDLT) On all property and land transactions, the buyer needs to be aware that there is potentially a stamp duty land tax amount to pay on their completed purchase.
The link below will take you to the government online calculator to assist you with working out the cost for this tax and if it is applicable to you.
DIGITALMARKETS,COMPETITIONANDCONSUMERACT2024(DMCC) Your Ipswich Ltd has not tested any electrical items, appliances, plumbing or heating systems and therefore cannot testify that they are operational. These particulars are set out as a general outline only for the guidance of potential purchasers or tenants and do not constitute an offer or contract. Photographs are not necessarily comprehensive or current and all descriptions, dimensions, references to condition necessary permissions for use and occupation and other details are given in good faith and believed to be correct but should not be relied upon as statements of, or representations of, fact. Intending purchasers or tenants must satisfy themselves by inspection or otherwise as to the correctness of each of them. We have taken steps to comply with the Digital Markets, Competition and Consumer Act 2024 (DMCC), which require both the seller and their agent to disclose anything, within their knowledge, that would affect the buying decision of the average consumer. If there are any aspects of this property that you wish to clarify before arranging an appointment to view or considering an offer to purchase, please contact us and we will make every effort to be of assistance.
Your Ipswich Ltd, as part of their service to both vendor and purchaser, offer assistance to arrange mortgage and insurance policies, legal services, energy performance certificates, and the valuation and sale of any property relating to any purchaser connected to this transaction. Your Ipswich Ltd confirms they will not prefer one purchaser above another solely because he/she has agreed to accept the offer of any other service from Your Ipswich Ltd. Referral commission (where received) is in the range of £60 to £200.