SUMMARY A superior, modern executive detached family home offering generously proportioned, sumptuous accommodation finished to a luxury standard. Briefly comprising a spacious entrance reception, stylish contemporary kitchen and dining room with integrated appliances, generous sitting room with log burner, snug/office, utility room and cloakroom on the ground floor with landing, four comfortable bedrooms, en-suite shower room to principal bedroom and four-piece family bathroom. To the outside the property is nicely set back from the road by green frontages and sweeping driveways accessing four similar quality homes, with an ample private driveway leading to a detached double garage. The attractive rear garden is predominantly laid to lawn with an extended Indian Stone patio and thoughtfully stocked border beds promoting privacy. Ideally located on the edge of Brome within the picturesque town of Eye, conveniently lying between Ipswich and Norwich in a desirable semi-rural location, early viewing is highly recommended.
SHELTEREDENTRANCE Composite front door to.
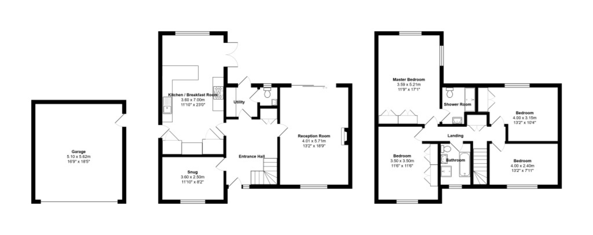
ENTRANCERECEPTION Under-floor heating, built-in cupboard, luxury vinyl tile flooring, inset ceiling lights, stairs rising to first floor, doors to.
KITCHENANDDININGROOM11' 10" x 23' approx. (3.61m x 7.01m) Double glazed windows to side and rear, under-floor heating, an extensive range of stylish contemporary base and eye level fitted cupboard and drawer units with under unit courtesy lighting over quartz work surfaces, under mounted sink unit with cold filtered hot and cold mixer tap, twin built-in fan assisted ovens, inset electric induction hob with extractor chimney above, integrated double fridge-freezer and dish-washer, in cupboard recycling unit, luxury vinyl tile flooring, inset ceiling lights, double glazed side door to outside, double glazed French doors to rear opening out to patio.
SITTINGROOM13' 2" x 18' 9" approx. (4.01m x 5.72m) Double glazed window to front, under-floor heating, op[en fireplace with cottage style log burner, broadband and television points, double glazed patio door opening to garden, inset ceiling lights.
SNUG/HOMEOFFICE/FIFTHBEDROOM11' 10" x 8' 2" approx. (3.61m x 2.49m) Double glazed window to front, under-floor heating, broadband and television points, luxury vinyl tile flooring, inset ceiling lights.
UTILITYROOM Under-floor heating, base and eye level fitted cupboard units, under unit courtesy lighting over quartz work surfaces, in cupboard water softener, under counter spaces for washing machine and tumble dryer, luxury vinyl tile flooring, inset ceiling lights, door to cloakroom.
CLOAKROOM Double glazed window to rear, under-floor heating, mounted hand-wash basin with mixer tap and drawer unit under, low level WC, luxury vinyl tile flooring, inset ceiling lights.
STAIRSRISINGTOFIRSTFLOOR
LANDING Built-in shelved airing cupboard housing hot water tank, radiator, loft access, inset ceiling lights, doors to.
PRINCIPALBEDROOM11' 9" x 17' 1" approx. (3.58m x 5.21m) Double glazed windows to side and rear, built-in twin double wardrobes, television point, door to en-suite.
EN-SUITESHOWERROOM Obscured double glazed window to rear, chrome heated towel rail, walk-in double fixed head shower with separate rinser, mounted hand-wash basin with mixer tap and drawer unit under, low level WC, touch light mirror, luxury vinyl tile flooring, inset ceiling lights.
BEDROOMTWO13' 2" x 10' 4" max. approx. (4.01m x 3.15m) Double glazed window to rear, radiator, built-in double wardrobe, television point.
BEDROOMTHREE11' 6" x 11' 6" approx. (3.51m x 3.51m) Double glazed window to front, radiator, built-in twin double wardrobes.
BEDROOMFOUR13' 2" x 7' 11" approx. (4.01m x 2.41m) Double glazed window to front, radiator.
FAMILYBATHROOM Obscure double glazed window to front, radiator, chrome heated towel rail, panelled bath with mixer tap and shower attachment, shower cubicle with fixed head shower and separate rinser, mounted hand-wash basin with mixer tap and drawer unit under, low level WC, touch light mirror, luxury vinyl tile flooring, inset ceiling lights.
OUTSIDE To the outside the property is nicely set back from the road by green frontages and sweeping driveways accessing four similar quality homes, with an ample private driveway leading to a detached double garage, additional hard stand parking area, and gated pedestrian access to the rear garden. The attractive rear garden is predominantly laid to lawn with an extended Indian Stone patio, twin raised vegetable patches, patio privacy screens, beautifully stocked flower beds, and thoughtfully stocked border beds promoting developing natural privacy to the rear and secluding the garden from the business buildings behind. The air source heat pump is mounted on the patio to the rear of the house.
DETACHEDDOUBLEGARAGE16' 9" x 18' 5" approx. (5.11m x 5.61m) Electric remotely operated roller shutter entry door, pitched roof with loft space, mains power and lighting, personal door to garden.
MIDSUFFOLKDISTRICTCOUNCIL Tax band E - Approximately £3,016.75P, PA (2026-2027).
NEARESTSCHOOLS(.GOVONLINE) St Peter and St Paul C of E primary and Hartismere School secondary.
DIRECTIONS Located between Ipswich and Norwich, head north-east along the A140 towards Norwich, at the Eye Road/Castleton intersecting roundabout, take the second exit and continue along the A140, at the roundabout, take the 2nd exit onto B1077, turn left, turn left onto Rectory Rd, turn right, turn left, the destination will be on the right.
BROADBANDANDMOBILEPHONECOVERAGE Broadband- To check the broadband coverage available in the area go to
https://checker.ofcom.org.uk/en-gb/broadband-coverage
Mobile Phone- To check mobile phone coverage in the area go to
https://checker.ofcom.org.uk/en-gb/mobile-coverage
STAMPDUTYLANDTAX(SDLT) On all property and land transactions, the buyer needs to be aware that there is potentially a stamp duty land tax amount to pay on their completed purchase.
The link below will take you to the government online calculator to assist you with working out the cost for this tax and if it is applicable to you.
DIGITALMARKETS,COMPETITIONANDCONSUMERACT2024(DMCC) Your Ipswich Ltd has not tested any electrical items, appliances, plumbing or heating systems and therefore cannot testify that they are operational. These particulars are set out as a general outline only for the guidance of potential purchasers or tenants and do not constitute an offer or contract. Photographs are not necessarily comprehensive or current and all descriptions, dimensions, references to condition necessary permissions for use and occupation and other details are given in good faith and believed to be correct but should not be relied upon as statements of, or representations of, fact. Intending purchasers or tenants must satisfy themselves by inspection or otherwise as to the correctness of each of them. We have taken steps to comply with the Digital Markets, Competition and Consumer Act 2024 (DMCC), which require both the seller and their agent to disclose anything, within their knowledge, that would affect the buying decision of the average consumer. If there are any aspects of this property that you wish to clarify before arranging an appointment to view or considering an offer to purchase, please contact us and we will make every effort to be of assistance.
Your Ipswich Ltd, as part of their service to both vendor and purchaser, offer assistance to arrange mortgage and insurance policies, legal services, energy performance certificates, and the valuation and sale of any property relating to any purchaser connected to this transaction. Your Ipswich Ltd confirms they will not prefer one purchaser above another solely because he/she has agreed to accept the offer of any other service from Your Ipswich Ltd. Referral commission (where received) is in the range of £60 to £200.
Location
Description
IMMACULATE, MODERN EXECUTIVE DETACHED HOUSE
STYLISH KITCHEN AND DINING ROOM
EXCELLENT PROPORTIONS
SUMPTUOUS ACCOMMODATION
LUXURIOUS FINISH
FOUR COMFORTABLE BEDROOMS
DETACHED DOUBLE GARAGE AND DRIVEWAY
NICELY SET BACK BY SWEEPING DRIVEWAYS
GENEROUS ATTRACTIVE GARDEN WITH EXTENDED PATIO
SUMMARY A superior, modern executive detached family home offering generously proportioned, sumptuous accommodation finished to a luxury standard. Briefly comprising a spacious entrance reception, stylish contemporary kitchen and dining room with integrated appliances, generous sitting room with log burner, snug/office, utility room and cloakroom on the ground floor with landing, four comfortable bedrooms, en-suite shower room to principal bedroom and four-piece family bathroom. To the outside the property is nicely set back from the road by green frontages and sweeping driveways accessing four similar quality homes, with an ample private driveway leading to a detached double garage. The attractive rear garden is predominantly laid to lawn with an extended Indian Stone patio and thoughtfully stocked border beds promoting privacy. Ideally located on the edge of Brome within the picturesque town of Eye, conveniently lying between Ipswich and Norwich in a desirable semi-rural location, early viewing is highly recommended.
SHELTEREDENTRANCE Composite front door to.
ENTRANCERECEPTION Under-floor heating, built-in cupboard, luxury vinyl tile flooring, inset ceiling lights, stairs rising to first floor, doors to.
KITCHENANDDININGROOM11' 10" x 23' approx. (3.61m x 7.01m) Double glazed windows to side and rear, under-floor heating, an extensive range of stylish contemporary base and eye level fitted cupboard and drawer units with under unit courtesy lighting over quartz work surfaces, under mounted sink unit with cold filtered hot and cold mixer tap, twin built-in fan assisted ovens, inset electric induction hob with extractor chimney above, integrated double fridge-freezer and dish-washer, in cupboard recycling unit, luxury vinyl tile flooring, inset ceiling lights, double glazed side door to outside, double glazed French doors to rear opening out to patio.
SITTINGROOM13' 2" x 18' 9" approx. (4.01m x 5.72m) Double glazed window to front, under-floor heating, op[en fireplace with cottage style log burner, broadband and television points, double glazed patio door opening to garden, inset ceiling lights.
SNUG/HOMEOFFICE/FIFTHBEDROOM11' 10" x 8' 2" approx. (3.61m x 2.49m) Double glazed window to front, under-floor heating, broadband and television points, luxury vinyl tile flooring, inset ceiling lights.
UTILITYROOM Under-floor heating, base and eye level fitted cupboard units, under unit courtesy lighting over quartz work surfaces, in cupboard water softener, under counter spaces for washing machine and tumble dryer, luxury vinyl tile flooring, inset ceiling lights, door to cloakroom.
CLOAKROOM Double glazed window to rear, under-floor heating, mounted hand-wash basin with mixer tap and drawer unit under, low level WC, luxury vinyl tile flooring, inset ceiling lights.
STAIRSRISINGTOFIRSTFLOOR
LANDING Built-in shelved airing cupboard housing hot water tank, radiator, loft access, inset ceiling lights, doors to.
PRINCIPALBEDROOM11' 9" x 17' 1" approx. (3.58m x 5.21m) Double glazed windows to side and rear, built-in twin double wardrobes, television point, door to en-suite.
EN-SUITESHOWERROOM Obscured double glazed window to rear, chrome heated towel rail, walk-in double fixed head shower with separate rinser, mounted hand-wash basin with mixer tap and drawer unit under, low level WC, touch light mirror, luxury vinyl tile flooring, inset ceiling lights.
BEDROOMTWO13' 2" x 10' 4" max. approx. (4.01m x 3.15m) Double glazed window to rear, radiator, built-in double wardrobe, television point.
BEDROOMTHREE11' 6" x 11' 6" approx. (3.51m x 3.51m) Double glazed window to front, radiator, built-in twin double wardrobes.
BEDROOMFOUR13' 2" x 7' 11" approx. (4.01m x 2.41m) Double glazed window to front, radiator.
FAMILYBATHROOM Obscure double glazed window to front, radiator, chrome heated towel rail, panelled bath with mixer tap and shower attachment, shower cubicle with fixed head shower and separate rinser, mounted hand-wash basin with mixer tap and drawer unit under, low level WC, touch light mirror, luxury vinyl tile flooring, inset ceiling lights.
OUTSIDE To the outside the property is nicely set back from the road by green frontages and sweeping driveways accessing four similar quality homes, with an ample private driveway leading to a detached double garage, additional hard stand parking area, and gated pedestrian access to the rear garden. The attractive rear garden is predominantly laid to lawn with an extended Indian Stone patio, twin raised vegetable patches, patio privacy screens, beautifully stocked flower beds, and thoughtfully stocked border beds promoting developing natural privacy to the rear and secluding the garden from the business buildings behind. The air source heat pump is mounted on the patio to the rear of the house.
DETACHEDDOUBLEGARAGE16' 9" x 18' 5" approx. (5.11m x 5.61m) Electric remotely operated roller shutter entry door, pitched roof with loft space, mains power and lighting, personal door to garden.
MIDSUFFOLKDISTRICTCOUNCIL Tax band E - Approximately £3,016.75P, PA (2026-2027).
NEARESTSCHOOLS(.GOVONLINE) St Peter and St Paul C of E primary and Hartismere School secondary.
DIRECTIONS Located between Ipswich and Norwich, head north-east along the A140 towards Norwich, at the Eye Road/Castleton intersecting roundabout, take the second exit and continue along the A140, at the roundabout, take the 2nd exit onto B1077, turn left, turn left onto Rectory Rd, turn right, turn left, the destination will be on the right.
BROADBANDANDMOBILEPHONECOVERAGE Broadband- To check the broadband coverage available in the area go to
https://checker.ofcom.org.uk/en-gb/broadband-coverage
Mobile Phone- To check mobile phone coverage in the area go to
https://checker.ofcom.org.uk/en-gb/mobile-coverage
STAMPDUTYLANDTAX(SDLT) On all property and land transactions, the buyer needs to be aware that there is potentially a stamp duty land tax amount to pay on their completed purchase.
The link below will take you to the government online calculator to assist you with working out the cost for this tax and if it is applicable to you.
DIGITALMARKETS,COMPETITIONANDCONSUMERACT2024(DMCC) Your Ipswich Ltd has not tested any electrical items, appliances, plumbing or heating systems and therefore cannot testify that they are operational. These particulars are set out as a general outline only for the guidance of potential purchasers or tenants and do not constitute an offer or contract. Photographs are not necessarily comprehensive or current and all descriptions, dimensions, references to condition necessary permissions for use and occupation and other details are given in good faith and believed to be correct but should not be relied upon as statements of, or representations of, fact. Intending purchasers or tenants must satisfy themselves by inspection or otherwise as to the correctness of each of them. We have taken steps to comply with the Digital Markets, Competition and Consumer Act 2024 (DMCC), which require both the seller and their agent to disclose anything, within their knowledge, that would affect the buying decision of the average consumer. If there are any aspects of this property that you wish to clarify before arranging an appointment to view or considering an offer to purchase, please contact us and we will make every effort to be of assistance.
Your Ipswich Ltd, as part of their service to both vendor and purchaser, offer assistance to arrange mortgage and insurance policies, legal services, energy performance certificates, and the valuation and sale of any property relating to any purchaser connected to this transaction. Your Ipswich Ltd confirms they will not prefer one purchaser above another solely because he/she has agreed to accept the offer of any other service from Your Ipswich Ltd. Referral commission (where received) is in the range of £60 to £200.