POSSIBILITY TO CREATE ANOTHER BEDROOM SUBJECT TO NECESSARY CONSENTS
WALKING DISTANCE TO SCHOOLS & BUS SERVICE
CLOSE TO A PARADE OF CONVENIENT SHOPS
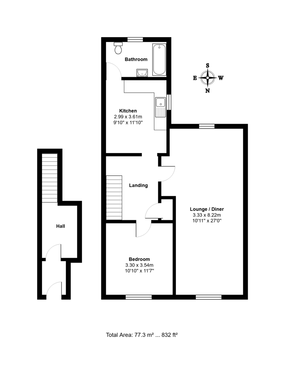
NO ONWARD CHAIN - Your Ipswich are pleased to be offering for sale this first floor apartment situated above a second hand furniture shop and located to the South-East of Ipswich within a parade of convenient shops. There is an opportunity to create a second bedroom subject to the necessary consents. The apartment comprises: door into shared entrance with electric meters, further door into apartment entrance hall with stairs to first floor leading to spacious lounge/dining room, double bedroom, kitchen and bathroom. The apartment is predominantly double glazed and gas centrally heated. IDEAL FOR FIRST TIME BUY OR INVESTMENT.
COMMUNALENTRANCE Double glazed door into communal entrance with electric meters for shop & apartment, further door into entrance hall.
ENTRANCEHALL Stairs to first floor, laminate flooring on landing, radiator, storage cupboard, doors to lounge/dining, bedroom and kitchen.
LOUNGE/DINING26' 1" x 11' 10" (7.95m x 3.61m) Laminate flooring, 2 radiators, dual aspect double glazed windows to front and rear, Possibility to create a second bedroom subject to necessary consents.
KITCHEN11' 10" x 9' 9" max (3.61m x 2.97m) Matching eye level and base units with roll edge work tops, stainless steel sink & drainer with hot & cold taps, 4 ring gas hob with stainless steel extractor over, electric oven, wall mounted gas boiler, window to side aspect, door into bathroom.
BATHROOM7' 4" x 5' 8" (2.24m x 1.73m) Comprising low level WC, wash hand basin and bath with mixer shower attachment, radiator, vinyl floor covering, loft hatch plumbing for washing machine, double glazed window to rear aspect.
BEDROOM11' 9" x 11' 7" (3.58m x 3.53m) Laminate floor covering, radiator, double glazed window to front aspect.
SERVICES We understand all mains services are connected.
COUNCIL Ipswich Borough Council
Council Tax Band (A) £1,572.36
NEARESTSCHOOLS Murray field primary & Ipswich academy.
LEASEDETAILS Lease start date 2015
87 Years remaining
Ground rent £150.00 PA
No service charge
Buildings insurance £710.96
DIGITALMARKETS,COMPETITIONANDCONSUMERACT2024(DMCC)
Your Ipswich Ltd has not tested any electrical items, appliances, plumbing or heating systems and therefore cannot testify that they are operational. These particulars are set out as a general outline only for the guidance of potential purchasers or tenants and do not constitute an offer or contract. Photographs are not necessarily comprehensive or current and all descriptions, dimensions, references to condition necessary permissions for use and occupation and other details are given in good faith and believed to be correct but should not be relied upon as statements of, or representations of, fact. Intending purchasers or tenants must satisfy themselves by inspection or otherwise as to the correctness of each of them. We have taken steps to comply with the Digital Markets, Competition and Consumer Act 2024 (DMCC), which require both the seller and their agent to disclose anything, within their knowledge, that would affect the buying decision of the average consumer. If there are any aspects of this property that you wish to clarify before arranging an appointment to view or considering an offer to purchase, please contact us and we will make every effort to be of assistance.
Your Ipswich Ltd, as part of their service to both vendor and purchaser, offer assistance to arrange mortgage and insurance policies, legal services, energy performance certificates, and the valuation and sale of any property relating to any purchaser connected to this transaction. Your Ipswich Ltd confirms they will not prefer one purchaser above another solely because he/she has agreed to accept the offer of any other service from Your Ipswich Ltd. Referral commission (where received) is in the range of £60 to £200.
AGENT´SSTAMPDUTYNOTE
Please be advised that as of the 1st of April 2025, the government is changing the stamp duty and land tax structure on all residential purchases, which may affect the cost of stamp duty and land tax for your property purchase.
As of the 1st of April 2025, stamp duty and land tax will become due on all residential purchases of £125,000 or more. First time buyers will be required to pay stamp duty and land tax on all purchases of £300,000 or more.
If you are purchasing a second home, you will also be required to pay an additional 5% stamp duty and land tax.
BROADBAND&MOBILEPHONECOVERAGE To check the broadband coverage available in the area go to
https://checker.ofcom.org.uk/en-gb/broadband-coverage
Mobile Phone- To check mobile phone coverage in the area go to
https://checker.ofcom.org.uk/en-gb/mobile-coverage
Location
Description
NO ONWARD CHAIN
IDEAL FTB OR INVESTMENT
SPACIOUS LOUNGE/DINING
KITCHEN
BATHROOM
PREDOMINANTLY DOUBLE GLAZED EXCEPT WHERE STATED
GAS CENTRAL HEATING
POSSIBILITY TO CREATE ANOTHER BEDROOM SUBJECT TO NECESSARY CONSENTS
WALKING DISTANCE TO SCHOOLS & BUS SERVICE
CLOSE TO A PARADE OF CONVENIENT SHOPS
NO ONWARD CHAIN - Your Ipswich are pleased to be offering for sale this first floor apartment situated above a second hand furniture shop and located to the South-East of Ipswich within a parade of convenient shops. There is an opportunity to create a second bedroom subject to the necessary consents. The apartment comprises: door into shared entrance with electric meters, further door into apartment entrance hall with stairs to first floor leading to spacious lounge/dining room, double bedroom, kitchen and bathroom. The apartment is predominantly double glazed and gas centrally heated. IDEAL FOR FIRST TIME BUY OR INVESTMENT.
COMMUNALENTRANCE Double glazed door into communal entrance with electric meters for shop & apartment, further door into entrance hall.
ENTRANCEHALL Stairs to first floor, laminate flooring on landing, radiator, storage cupboard, doors to lounge/dining, bedroom and kitchen.
LOUNGE/DINING26' 1" x 11' 10" (7.95m x 3.61m) Laminate flooring, 2 radiators, dual aspect double glazed windows to front and rear, Possibility to create a second bedroom subject to necessary consents.
KITCHEN11' 10" x 9' 9" max (3.61m x 2.97m) Matching eye level and base units with roll edge work tops, stainless steel sink & drainer with hot & cold taps, 4 ring gas hob with stainless steel extractor over, electric oven, wall mounted gas boiler, window to side aspect, door into bathroom.
BATHROOM7' 4" x 5' 8" (2.24m x 1.73m) Comprising low level WC, wash hand basin and bath with mixer shower attachment, radiator, vinyl floor covering, loft hatch plumbing for washing machine, double glazed window to rear aspect.
BEDROOM11' 9" x 11' 7" (3.58m x 3.53m) Laminate floor covering, radiator, double glazed window to front aspect.
SERVICES We understand all mains services are connected.
COUNCIL Ipswich Borough Council
Council Tax Band (A) £1,572.36
NEARESTSCHOOLS Murray field primary & Ipswich academy.
LEASEDETAILS Lease start date 2015
87 Years remaining
Ground rent £150.00 PA
No service charge
Buildings insurance £710.96
DIGITALMARKETS,COMPETITIONANDCONSUMERACT2024(DMCC)
Your Ipswich Ltd has not tested any electrical items, appliances, plumbing or heating systems and therefore cannot testify that they are operational. These particulars are set out as a general outline only for the guidance of potential purchasers or tenants and do not constitute an offer or contract. Photographs are not necessarily comprehensive or current and all descriptions, dimensions, references to condition necessary permissions for use and occupation and other details are given in good faith and believed to be correct but should not be relied upon as statements of, or representations of, fact. Intending purchasers or tenants must satisfy themselves by inspection or otherwise as to the correctness of each of them. We have taken steps to comply with the Digital Markets, Competition and Consumer Act 2024 (DMCC), which require both the seller and their agent to disclose anything, within their knowledge, that would affect the buying decision of the average consumer. If there are any aspects of this property that you wish to clarify before arranging an appointment to view or considering an offer to purchase, please contact us and we will make every effort to be of assistance.
Your Ipswich Ltd, as part of their service to both vendor and purchaser, offer assistance to arrange mortgage and insurance policies, legal services, energy performance certificates, and the valuation and sale of any property relating to any purchaser connected to this transaction. Your Ipswich Ltd confirms they will not prefer one purchaser above another solely because he/she has agreed to accept the offer of any other service from Your Ipswich Ltd. Referral commission (where received) is in the range of £60 to £200.
AGENT´SSTAMPDUTYNOTE
Please be advised that as of the 1st of April 2025, the government is changing the stamp duty and land tax structure on all residential purchases, which may affect the cost of stamp duty and land tax for your property purchase.
As of the 1st of April 2025, stamp duty and land tax will become due on all residential purchases of £125,000 or more. First time buyers will be required to pay stamp duty and land tax on all purchases of £300,000 or more.
If you are purchasing a second home, you will also be required to pay an additional 5% stamp duty and land tax.
BROADBAND&MOBILEPHONECOVERAGE To check the broadband coverage available in the area go to
https://checker.ofcom.org.uk/en-gb/broadband-coverage
Mobile Phone- To check mobile phone coverage in the area go to
https://checker.ofcom.org.uk/en-gb/mobile-coverage