WALKING DISTANCE TO SCHOOLS, SHOPS AND BUS SERVICE
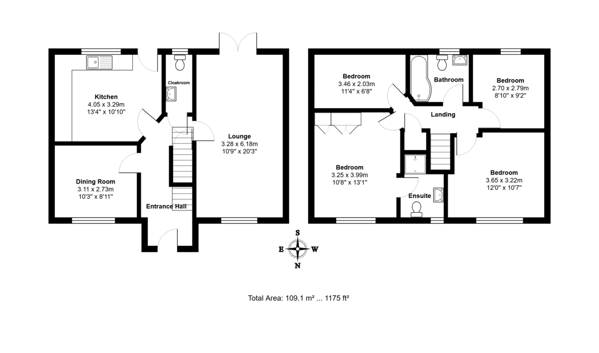
NO ONWARD CHAIN - Ipswich & Suffolk Estate Agents are pleased to be offering for sale this 4 bedroom detached house built in 2004 on the Sycamore estate. The property does require updating and is arranged over two floors comprising entrance hall, two reception rooms, kitchen/breakfast room, G/F cloakroom, stairs leading to 4 bedrooms, master with en-suite and family bathroom. Further benefits include gas central heating, double glazed windows, off road parking, garage, store room behind garage, timber garden cabin, front & rear gardens, walking distance to local schools, shops and bus service.
ENTRANCEHALL Laminate flooring, radiator, stairs to first floor, storage cupboard under stairs, doors to reception rooms, kitchen/breakfast and cloakroom.
DININGROOM10' 3" x 8' 11" (3.12m x 2.72m) Carpeted flooring, radiator, double glazed window to front aspect.
LOUNGE20' 3" x 10' 9" (6.17m x 3.28m) Laminate flooring, 2 radiators feature marble fireplace with electric fire, double glazed window to front aspect, double glazed French doors to rear aspect.
KITCHEN/BREAKFASTROOM13' 4" x 10' 10" (4.06m x 3.3m) Eye level and matching base units with roll edge worktops, 4 ring gas hob electric oven, stainless steel sink and drainer, hot & cold mixer tap, space for fridge/freezer, plumbing for washing machine & dish washer, wall mounted gas Baxi boiler concealed in wall unit, tiled flooring, double glazed window to rear aspect, door to rear aspect, radiator.
STAIRS Carpeted stairs & landing, loft hatch, radiator, doors to bedrooms and bathroom.
CLOAKROOM Low level WC, wash hand basin, laminate flooring, radiator, double glazed window to rear aspect.
BEDROOM113' 1" x 10' 8" (3.99m x 3.25m) Carpeted flooring, radiator, 3 door built in wardrobe, double glazed window to front aspect, door to en-suite.
EN-SUITE Low level WC wash hand basin, shower cubicle, laminate flooring, radiator, double glazed window to front aspect.
BEDROOM212' 0" max x 10' 7" max (3.66m x 3.23m) Carpeted flooring, radiator, double glazed window to front aspect.
BEDROOM39' 2" x 8' 10" (2.79m x 2.69m) Carpeted flooring, radiator, double glazed window to rear aspect.
BEDROOM411' 4" x 6' 8" (3.45m x 2.03m) Radiator, double glazed window to rear aspect.
BATHROOM7' 3" x 5' 6" (2.21m x 1.68m) Comprising low level WC, wash hand basin with storage under, bat with electric shower over, tile effect flooring, double glazed window to rear aspect, chrome heated towel rail, extractor fan.
GARAGE16' 11" x 8' 10" (5.16m x 2.69m) Up & over roller door, power & lighting connected.
STORAGEROOM Double glazed door and side windows.
TIMBERGARDENCABIN19' x 9' 2" (5.79m x 2.79m) Laminate flooring, power & lighting connected door & windows to front.
OUTSIDE Block paved driveway providing off road parking, front lawn, double gates leading to garage, rear garden is mainly laid to lawn, patio area, garden all enclosed by fencing.
COUNCILTAX Ipswich Borough Council
Council Tax Band (D) £2,358.54
SERVICES We understand all mains services are connected.
DIGITALMARKETS,COMPETITIONANDCONSUMERACT2024(DMCC)
Your Ipswich Ltd has not tested any electrical items, appliances, plumbing or heating systems and therefore cannot testify that they are operational. These particulars are set out as a general outline only for the guidance of potential purchasers or tenants and do not constitute an offer or contract. Photographs are not necessarily comprehensive or current and all descriptions, dimensions, references to condition necessary permissions for use and occupation and other details are given in good faith and believed to be correct but should not be relied upon as statements of, or representations of, fact. Intending purchasers or tenants must satisfy themselves by inspection or otherwise as to the correctness of each of them. We have taken steps to comply with the Digital Markets, Competition and Consumer Act 2024 (DMCC), which require both the seller and their agent to disclose anything, within their knowledge, that would affect the buying decision of the average consumer. If there are any aspects of this property that you wish to clarify before arranging an appointment to view or considering an offer to purchase, please contact us and we will make every effort to be of assistance.
Your Ipswich Ltd, as part of their service to both vendor and purchaser, offer assistance to arrange mortgage and insurance policies, legal services, energy performance certificates, and the valuation and sale of any property relating to any purchaser connected to this transaction. Your Ipswich Ltd confirms they will not prefer one purchaser above another solely because he/she has agreed to accept the offer of any other service from Your Ipswich Ltd. Referral commission (where received) is in the range of £60 to £200.
AGENT´SSTAMPDUTYNOTE
Please be advised that as of the 1st of April 2025, the government is changing the stamp duty and land tax structure on all residential purchases, which may affect the cost of stamp duty and land tax for your property purchase.
As of the 1st of April 2025, stamp duty and land tax will become due on all residential purchases of £125,000 or more. First time buyers will be required to pay stamp duty and land tax on all purchases of £300,000 or more.
If you are purchasing a second home, you will also be required to pay an additional 5% stamp duty and land tax.
BROADBAND&MOBILEPHONECOVERAGE
Broadband- To check the broadband coverage available in the area go to
https://checker.ofcom.org.uk/en-gb/broadband-coverage
Mobile Phone- To check mobile phone coverage in the area go to
https://checker.ofcom.org.uk/en-gb/mobile-coverage
Location
Description
NO ONWARD CHAIN
SOME UPDATING REQUIRED
4 BEDROOM DETACHED HOUSE
2 RECEPTION ROOMS
KITCHEN/BREAKFAST ROOM
EN SUITE TO MASTER + FAMILY BATHROOM
GROUND FLOOR CLOAKROOM
DOUBLE GLAZED & GAS CENTRALLY HEATED
GARAGE & PARKING
WALKING DISTANCE TO SCHOOLS, SHOPS AND BUS SERVICE
NO ONWARD CHAIN - Ipswich & Suffolk Estate Agents are pleased to be offering for sale this 4 bedroom detached house built in 2004 on the Sycamore estate. The property does require updating and is arranged over two floors comprising entrance hall, two reception rooms, kitchen/breakfast room, G/F cloakroom, stairs leading to 4 bedrooms, master with en-suite and family bathroom. Further benefits include gas central heating, double glazed windows, off road parking, garage, store room behind garage, timber garden cabin, front & rear gardens, walking distance to local schools, shops and bus service.
ENTRANCEHALL Laminate flooring, radiator, stairs to first floor, storage cupboard under stairs, doors to reception rooms, kitchen/breakfast and cloakroom.
DININGROOM10' 3" x 8' 11" (3.12m x 2.72m) Carpeted flooring, radiator, double glazed window to front aspect.
LOUNGE20' 3" x 10' 9" (6.17m x 3.28m) Laminate flooring, 2 radiators feature marble fireplace with electric fire, double glazed window to front aspect, double glazed French doors to rear aspect.
KITCHEN/BREAKFASTROOM13' 4" x 10' 10" (4.06m x 3.3m) Eye level and matching base units with roll edge worktops, 4 ring gas hob electric oven, stainless steel sink and drainer, hot & cold mixer tap, space for fridge/freezer, plumbing for washing machine & dish washer, wall mounted gas Baxi boiler concealed in wall unit, tiled flooring, double glazed window to rear aspect, door to rear aspect, radiator.
STAIRS Carpeted stairs & landing, loft hatch, radiator, doors to bedrooms and bathroom.
CLOAKROOM Low level WC, wash hand basin, laminate flooring, radiator, double glazed window to rear aspect.
BEDROOM113' 1" x 10' 8" (3.99m x 3.25m) Carpeted flooring, radiator, 3 door built in wardrobe, double glazed window to front aspect, door to en-suite.
EN-SUITE Low level WC wash hand basin, shower cubicle, laminate flooring, radiator, double glazed window to front aspect.
BEDROOM212' 0" max x 10' 7" max (3.66m x 3.23m) Carpeted flooring, radiator, double glazed window to front aspect.
BEDROOM39' 2" x 8' 10" (2.79m x 2.69m) Carpeted flooring, radiator, double glazed window to rear aspect.
BEDROOM411' 4" x 6' 8" (3.45m x 2.03m) Radiator, double glazed window to rear aspect.
BATHROOM7' 3" x 5' 6" (2.21m x 1.68m) Comprising low level WC, wash hand basin with storage under, bat with electric shower over, tile effect flooring, double glazed window to rear aspect, chrome heated towel rail, extractor fan.
GARAGE16' 11" x 8' 10" (5.16m x 2.69m) Up & over roller door, power & lighting connected.
STORAGEROOM Double glazed door and side windows.
TIMBERGARDENCABIN19' x 9' 2" (5.79m x 2.79m) Laminate flooring, power & lighting connected door & windows to front.
OUTSIDE Block paved driveway providing off road parking, front lawn, double gates leading to garage, rear garden is mainly laid to lawn, patio area, garden all enclosed by fencing.
COUNCILTAX Ipswich Borough Council
Council Tax Band (D) £2,358.54
SERVICES We understand all mains services are connected.
DIGITALMARKETS,COMPETITIONANDCONSUMERACT2024(DMCC)
Your Ipswich Ltd has not tested any electrical items, appliances, plumbing or heating systems and therefore cannot testify that they are operational. These particulars are set out as a general outline only for the guidance of potential purchasers or tenants and do not constitute an offer or contract. Photographs are not necessarily comprehensive or current and all descriptions, dimensions, references to condition necessary permissions for use and occupation and other details are given in good faith and believed to be correct but should not be relied upon as statements of, or representations of, fact. Intending purchasers or tenants must satisfy themselves by inspection or otherwise as to the correctness of each of them. We have taken steps to comply with the Digital Markets, Competition and Consumer Act 2024 (DMCC), which require both the seller and their agent to disclose anything, within their knowledge, that would affect the buying decision of the average consumer. If there are any aspects of this property that you wish to clarify before arranging an appointment to view or considering an offer to purchase, please contact us and we will make every effort to be of assistance.
Your Ipswich Ltd, as part of their service to both vendor and purchaser, offer assistance to arrange mortgage and insurance policies, legal services, energy performance certificates, and the valuation and sale of any property relating to any purchaser connected to this transaction. Your Ipswich Ltd confirms they will not prefer one purchaser above another solely because he/she has agreed to accept the offer of any other service from Your Ipswich Ltd. Referral commission (where received) is in the range of £60 to £200.
AGENT´SSTAMPDUTYNOTE
Please be advised that as of the 1st of April 2025, the government is changing the stamp duty and land tax structure on all residential purchases, which may affect the cost of stamp duty and land tax for your property purchase.
As of the 1st of April 2025, stamp duty and land tax will become due on all residential purchases of £125,000 or more. First time buyers will be required to pay stamp duty and land tax on all purchases of £300,000 or more.
If you are purchasing a second home, you will also be required to pay an additional 5% stamp duty and land tax.
BROADBAND&MOBILEPHONECOVERAGE
Broadband- To check the broadband coverage available in the area go to
https://checker.ofcom.org.uk/en-gb/broadband-coverage
Mobile Phone- To check mobile phone coverage in the area go to
https://checker.ofcom.org.uk/en-gb/mobile-coverage